Villa singola in vendita

Seveso, Via Monte Palanzone - Baruccana
€ 410.000
3 locali 3 locali
200 Mq 200 Mq
2 bagni 2 bagni

Villa singola in vendita

Seveso, Via Monte Palanzone - Baruccana

Descrizione annuncio

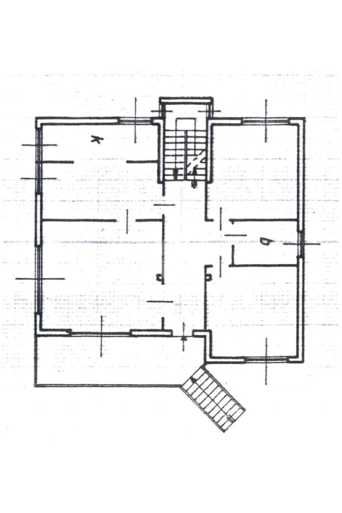
SEVESO - Villa indipendente con giardino e box triplo

Una villa completamente indipendente, circa 200 mq, con giardino privato e dotata di box triplo di circa 60mq collegato internamente all'abitazione.
Spazi ampi, struttura solida e una posizione che garantisce collegamenti rapidi con Milano e Brianza.
Una soluzione pensata per chi cerca funzionalità e indipendenza.

L’abitazione si sviluppa principalmente al piano rialzato e accoglie con un ingresso ampio e rappresentativo, che introduce a una distribuzione razionale e funzionale degli spazi. Il soggiorno è luminoso e ben esposto, con accesso diretto al balcone, mentre la presenza di una sala da pranzo separata e di un cucinotto consente una gestione comoda della vita quotidiana. La zona notte ospita due camere matrimoniali di ottime dimensioni e un bagno finestrato completo di vasca e doccia, elemento sempre più ricercato.

Il piano seminterrato amplia notevolmente le potenzialità della casa grazie a una taverna versatile, una lavanderia con locale caldaia e al box triplo, uno spazio raro che risponde perfettamente alle esigenze di famiglie con più veicoli o necessità di deposito e hobby.

Le finiture risalgono agli anni ’70 e raccontano la solidità costruttiva dell’epoca, con marmi a pavimento che donano carattere agli ambienti. Allo stesso tempo, l’immobile è stato aggiornato recentemente negli impianti elettrico ed idraulico. Sono inoltre presenti impianto di condizionamento e sistema di allarme, elementi che aumentano comfort e sicurezza.

All’esterno, il giardino privato rappresenta uno spazio prezioso da vivere e personalizzare. Un ulteriore punto di forza è la presenza di volumetria residua, che consente la possibilità di sopraelevare l’immobile con un ulteriore piano, offrendo una concreta opportunità di ampliamento o investimento futuro.

L’affaccio diretto sulla Milano–Meda, spesso visto come un limite, diventa qui un vantaggio strategico: la posizione garantisce collegamenti immediati e rapidi verso Milano, Monza e tutta la Brianza, rendendo questa villa ideale per chi desidera una casa indipendente senza rinunciare alla praticità degli spostamenti quotidiani. Una caratteristica particolarmente apprezzata da chi lavora fuori città o cerca una soluzione facilmente raggiungibile in ogni momento.

Soluzione completa, solida e ricca di potenzialità, perfetta per chi cerca indipendenza e possibilità di valorizzazione nel tempo.

Mostra tutto

Nelle vicinanze

Trasporto pubblico Trasporto pubblico
Seveso-Baruccana
Seveso-Baruccana
590 m
Seveso
Seveso
1,5 Km
Z115/Z116 - Seveso - C.so Isonzo, 100 / fr. 98
Z115/Z116 - Seveso - C.so Isonzo, 100 / fr. 98
240 m
Linee Z115 e Z116 - SEVESO - VIA TRENTO E TRIESTE FR. 12 - P.ZZA ITALIA
Linee Z115 e Z116 - SEVESO - VIA TRENTO E TRIESTE FR. 12 - P.ZZA ITALIA
530 m
Seveso-Baruccana
Seveso-Baruccana
590 m
Ricariche auto elettriche Ricariche auto elettriche
U2 Supermercato Meda | EnelX
2,1 Km
Iperal Barlassina
2,3 Km
Bricch Golf
2,9 Km
Scuole Scuole
Scuola secondaria di primo grado Don Aurelio Giussani
660 m
Scuola primaria "Enrico Toti"
950 m
Liceo paritario "Pier Giorgio Frassati"
990 m
Istituto Professionale di Stato Lorenzo Milani
1,1 Km
Scuola secondaria di primo grado Leonardo Da Vinci e Istituto Professionale di Stato L. Milani - Sede di Seveso
1,1 Km
Farmacia Farmacia
Farmacia
710 m
De' Medici
870 m
Farmacia Nuova
890 m
Farmacia San Pietro
1,2 Km
Farmacia Ticino
1,3 Km
Supermercati Supermercati
Famila
390 m
U2
1,2 Km
Crai
1,3 Km
Rex Cesano
1,5 Km
il Gigante
1,6 Km
Negozi Negozi
da Mattia
480 m
Camiceria Iba
1,0 Km
Panificio artigianale
1,2 Km
Seveso Market
1,4 Km
I piaceri del pane
1,4 Km
Bar Bar
da Luis Cafè
470 m
Gelatiamo
480 m
Bar del Corso
880 m
Bar Rosy
1,2 Km
Esterino Rielli
1,2 Km
Ristoranti Ristoranti
Pizzeria Champion
450 m
Fuori Orario
450 m
Pizza Ok
630 m
Antica pizzeria napoletana
830 m
No Stop Il Giropizza
1,1 Km
Mostra tutto

Caratteristiche

Rif.:
61153752
Piano:
2 di 2 (Piano terra)
Box:
3
Balconi:
1
Camere da letto:
2
Arredamento:
Parziale
Mostra tutto
Prezzo Prezzo
€ 410.000
Rata mutuo Rata mutuo
€ 1.948 / mese
Spese annue Spese annue
€ 0
Proponi il tuo prezzoProponi il tuo prezzo

Classe Energetica

F
F
F
F
F
F
F
F
F
EP globale non rinnovabile:
380.13 kW h/m² anno
EP globale rinnovabile:
3.16 kW h/m² anno
EP invernale del fabbricato:
EP estiva del fabbricato:
Anno di costruzione:
1970
Riscaldamento:
Autonomo
Tipo impianto:
A radiatori
Tipo alimentazione:
Metano

Ti interessa visionare l'immobile?

Fissa un appuntamento  Fissa un appuntamento

Richiedi informazioni

Clicca su Leggi per aprire l'informativa
* Questi campi sono obbligatori

Calcola il tuo mutuo

Semplice e senza impegno
Anticipo

( % )
Mutuo

( % )

pochi semplici passi

inserisci i tuoi dati
Questionario completato
Grazie per aver richiesto un appuntamento senza impegno con un nostro Consulente del Credito e Assicurativo.

Hai inserito correttamente tutti i dati necessari e a breve riceverai una e-mail con un link da convalidare per inviare i tuoi dati.
Affiliato
Studio Iride Srl
Viale Brianza, 35/37 20821 Meda (MB)

Il nostro staff


  • Francesco De Titta
    Affiliato

  • Valentina Gerosa
    Coordinatrice

  • Antonio Quattrone
    Affiliato
Viale Brianza, 35/37 20821 Meda (MB)
Zona: Meda
Mostra su mappa
Affiliato
Studio Iride Srl
Viale Brianza, 35/37 20821 Meda (MB)

2026 Tecnocasa Franchising S.p.A. - P. IVA 08365160152 - Via Monte Bianco 60/A 20089 Rozzano (MI). Ogni agenzia ha un proprio titolare ed è autonoma. Privacy policy | Policy utilizzo | Cookie policy